- Glasbeslag
- Nordic Frame® Glasväggar
- Nordic Frame® profiler
- Nordic Frame N45D (nya) natur (12mm glas) 5,5m komplett (AXS404512505)
Nordic Frame N45D (nya) natur (12mm glas) 5,5m komplett
Nordic Frame N45D (nya) natur (12mm glas) 5,5m komplett
Består av:
- N45D Basprofil 1st 5500mm
- N45 Glasprofil 1st 5500mm
- Falsgummi 5500mm
- Kilgummi 5500mm
Nordic Frame profilsystem för dörrar och fasta glas är utvecklade av oss på AXS Nordic med kvalité och användarvänlighet i fokus. Nordic Frame-serien möter de krav som arkitekter, montörer och brukare ställer på en modern glaskonstruktion.
Nordic Frame är ett system av högsta kvalité och kan med fördel användas i både privata som offentliga miljöer.
Teknisk specifikation:
- Ytbehandling: naturanodiserad aluminium, lackerat svart RAL 9005 eller vit RAL 9016.
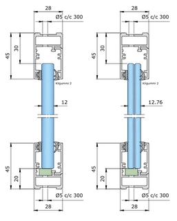
- N45D är anpassad för upp till 13,52mm glas med fals & kilgummi.
- Mått: 28x45mm
- Avdragsmått vid montage mot tak: 30mm
- Avdragsmått vid montage mot vägg och golv: 20mm
- Borrad för montering ø5mm c/c 300mm
- Skruvfickor för ändlock
- Spår för enkel montering av dörrkarmsvinkel
- Profilen har plats för tätningslist undertill och de två anläggningsytorna ger en stabil infästning. Spåret fungerar även bra som limyta om profilerna måste limmas på plats.
- 5 års materialgaranti
- Tillverkat av material som rekommenderas i Byggvarubedömningen
- Ljudreduktion upp till 38dB
- Profilen kan levereras kapad enligt önskemål och vi erbjuder även hjälp med ritningar och projektering.
Projekteringshjälp?
Du ritar snabbt och enkelt upp ditt Nordic Frame parti i vår produktkonfigurator. Använd gärna vår kapoptimering för optimering och littererad kaplista av profilerna. Vid behov hjälper vi till med projektering och att få din specifika lösning uppritad i CAD eller BIM för att säkerställa en bra slutprodukt.
Vänligen kontakta oss för mer information.
| Artikelnr: | AXS404512505 |
|---|---|
| Ytbehandling: | Naturanodiserad |
| Varumärke: | Nordic Frame |
Mer artikelinfo
Lagerställe Sthlm
Ej i lager
Ej i lager
Tillbehör
| Artikelnr | Benämning | Enhet | |
|---|---|---|---|
|
RE10962 | FLEX Glasningslist 180° 12-12,8mm glas, L=3000mm | ST |
|
HL4511001250 | Glaskloss plast 100x12x1mm, vit - 50st | FRP |
|
HL45110012250 | Glaskloss plast 100x12x2mm,blå-50st | FRP |
|
HL45110012550 | Glaskloss plast 100x12x5mm, grön - 50st | FRP |
|
RE10712 | Glasningslist 180°, 12-12.8mm glas, L=3000mm | ST |
|
RE1081201 | Glasningslist 2-vägsmöte 90°, 12-12.8mm glas, L=3000mm | ST |
|
RE10912 | Glasningslist hörn 90°, 12-12.8mm glas, L=3000mm | ST |
|
LO01-41031 | Glasningstejp 12-12,76mm(12m/rulle) t=3mm b=9mm Duplocoll® C | ST |
|
HL46999999 | Hävarmspade, plast | ST |
|
AXN3993 | Nordic Frame Grid naturanodiserad 25x2mm (spröjs alu), 3000m | ST |
|
AXN3992 | Nordic Frame Grid obehandlad 25x2mm (spröjs alu), 3000mm | ST |
|
GFAADSL3750 | Nordic Frame falsgummi 1 SVART | M |
|
AXN4205 | Nordic Frame installationsstolpe I120 komplett, natur, 3500m | ST |
|
AXS4056PD | Nordic Frame karmpaket D45 (nya) pardörr, exkl. beslag, natu | ST |
|
AXS4056ANPN | Nordic Frame karmpaket D45 (nya), anpassad exkl. beslag, nat | ST |
|
GFAADTP1945 | Nordic Frame kilgummi 2 SVART | M |
|
AXS10396001 | Nordic Frame ändlock (nya) N45/N45D , natur v2 m. skruv | ST |
|
GS1002158 | Täcklist Nordic Frame | M |
|
AXSPVC23012315 | Tätningslist Nordic Frame, 12x3mm, 15m | RLE |
|
GF91290200000 | Verktyg för applicering av kilgummi | ST |
Passar till
| Artikelnr | Benämning | Enhet | |
|---|---|---|---|
|
AXS5001AK | Nordic Frame Portal, ask klarlack dB38, inåtgående | ST |
|
AXS5002AK | Nordic Frame Portal, ask klarlack dB38, utåtgående | ST |
|
AXS5001EK | Nordic Frame Portal, ek klarlack dB38, inåtgående | ST |
|
AXS5002EK | Nordic Frame Portal, ek klarlack dB38, utåtgående | ST |
|
AXS5001NCS | Nordic Frame Portal, valfri NCS, dB38, inåtgående | ST |
|
AXS5002NCS | Nordic Frame Portal, valfri NCS, dB38, utåtgående | ST |
|
AXS405421HN | Nordic Frame karmpaket D45 (nya) exkl. beslag, HÖ 1000x2100, | ST |
|
AXS406221HN | Nordic Frame karmpaket D45 (nya) exkl. beslag, HÖ 800x2100, | ST |
|
AXS405321HN | Nordic Frame karmpaket D45 (nya) exkl. beslag, HÖ 900x2100, | ST |
|
AXS405421VN | Nordic Frame karmpaket D45 (nya) exkl. beslag, VÄ 1000x2100, | ST |
|
AXS406221VN | Nordic Frame karmpaket D45 (nya) exkl. beslag, VÄ 800x2100, | ST |
|
AXS405321VN | Nordic Frame karmpaket D45 (nya) exkl. beslag, VÄ 900x2100, | ST |
|
AXS4056PD | Nordic Frame karmpaket D45 (nya) pardörr, exkl. beslag, natu | ST |
|
AXS4056ANPN | Nordic Frame karmpaket D45 (nya), anpassad exkl. beslag, nat | ST |
|
AXS419821HN | Nordic Frame karmpaket D45S HÖ 10x21, natur - för trädörr | ST |
|
AXS419821VN | Nordic Frame karmpaket D45S VÄ 10x21, natur - för trädörr | ST |
|
AXS4098PKTH | Nordic Frame karmpaket D45S anpassad, HÖ, natur - för trädör | ST |
|
AXS4098PKTV | Nordic Frame karmpaket D45S anpassad, VÄ, natur - för trädör | ST |
|
AXS4298PKT | Nordic Frame karmpaket D45S, natur - för glasdörr 16,76-20,7 | ST |
Alternativ
| Artikelnr | Benämning | Enhet | |
|---|---|---|---|
|
AXS402512501 | Nordic Frame N25D natur (12mm glas) 5,5m komplett | ST |
|
AXS404512501 | Nordic Frame N45 (nya) natur (12mm glas) 5,5m komplett | ST |
|
AXS404510505 | Nordic Frame N45D (nya) natur (10mm glas) 5,5m komplett | ST |
|
AXS404508505 | Nordic Frame N45D (nya) natur (8mm glas) 5,5m komplett | ST |
|
AXS404512506 | Nordic Frame N45D (nya) svart (12mm glas) 5,5m komplett | ST |
|
AXS404512507 | Nordic Frame N45D (nya) vit (12mm glas) 5,5m komplett | ST |
Dokument
Du måste vara inloggad för att kunna ladda ned dokument. Logga in här.
| Nordic Frame Katalog |
| Nordic Frame Montage & Skötsel |
| Nordic Frame Profiler - DWG |
| Nordic Frame Profiler - PDF |